Du bist hier: Startseite1 / Immobiliendetails
Möblierungsbeispiel
Ansicht Eingang
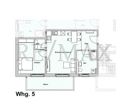
Draufsicht
Dachterrassenbeispiel

Wohnen mit Komfort und Effizienz in Bad Camberg, 2 Zimmer Wohnung.

307.500 €
Bad Camberg
2
Zimmer
1
Schlafzimmer
1
Badezimmer
66 m²
Wohnfläche

Energieausweis:

  • A+
  • A
  • B
  • C
  • D
  • E
  • F
  • G
  • H
0
30
50
75
100
130
160
200
250
>250
Baujahr:
2027
Endenergiebedarf:
8,6 kWh/(m²a)
Energieausweis:
Bedarfsausweis
Energieeffizienzklasse:
A+
Energieausweis gültig bis:
31.03.2027
wesentlicher Energieträger:
Luft/wasser Wärmepumpe
Baujahr lt. Energieausweis:
2027
Hochwertige Neubauwohnungen im Effizienzhaus 40 Standard.
Mitten in Bad Camberg entsteht ein modernes Mehrfamilienhaus mit 14 hochwertig ausgestatteten Wohneinheiten und Tiefgarage. Das Gebäud(…)
zur Detailansicht