Wohnen mit Komfort und Effizienz in Bad Camberg, 2 Zimmer Wohnung.
Beschreibung:
Hochwertige Neubauwohnungen im Effizienzhaus 40 Standard.Mitten in Bad Camberg entsteht ein modernes Mehrfamilienhaus mit 14 hochwertig ausgestatteten Wohneinheiten und Tiefgarage. Das Gebäude wird in energieeffizienter Bauweise als Effizienzhaus 40 nach GEG 2020 errichtet – ein zukunftsorientiertes Wohnkonzept, dass Nachhaltigkeit und Wohnkomfort optimal vereint.
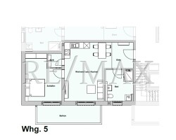
Diese 2 Zimmer Wohnung begeistert.
Die großzügigen Grundrisse mit durchdachten Details bieten Wohnraum für verschiedene Lebenssituationen – ob als Single, Paar oder Familie. Durch den Einbau einer modernen Luft-Wasser-Wärmepumpe, einer Fußbodenheizung in allen Wohnräumen sowie dezentralen Lüftungsanlagen mit Wärmerückgewinnung entsteht ein behagliches Raumklima bei gleichzeitig niedrigen Energiekosten.
Helle Räume mit großen Fenstern, hochwertige Vinylböden, barrierearme Zugänge, und stilvolle Bäder mit bodengleichen Duschen sorgen für zeitgemäßen Wohnkomfort. Ein besonderes Highlight sind die sonnigen, schwellenarmen Balkone und Terrassen.
Die Ausstattung wird durch Aufzug, private Kellerabteile sowie Fahrrad- und Kinderwagenraum komplettiert. Die Ladeinfrastruktur für E-Mobilität ist vorbereitet und ermöglicht den Bewohnern eine flexible und zukunftsfähige Nutzung.
Fragen Sie uns nach weiteren Grundrissen, Wohnflächen und Preisen.
Bad Camberg bietet als heilklimatischer Kurort mit historischer Altstadt, guten Einkaufsmöglichkeiten, Kindergärten, Schulen und direkter Anbindung an die A3 und den Bahnhof ideale Voraussetzungen für entspanntes und gut vernetztes Wohnen im Grünen.
Lagebeschreibung:
Lagebeschreibung – Bad CambergDas Mehrfamilienhaus befindet sich in einer ruhigen Wohnlage von Bad Camberg, einer charmanten Stadt im Herzen des Taunus. Die Umgebung zeichnet sich durch eine gelungene Mischung aus Grünflächen, gepflegten Wohnvierteln und einer ausgezeichneten Infrastruktur aus.
In nur wenigen Minuten erreichen Sie fußläufig Einkaufsmöglichkeiten für den täglichen Bedarf, Cafés und Restaurants sowie Ärzte und Apotheken. Schulen und Kindergärten sind ebenfalls gut erreichbar und machen den Standort besonders attraktiv für Familien.
Die Nähe zum Naturschutzgebiet und zahlreichen Wanderwegen lädt zu entspannten Spaziergängen und Outdoor-Aktivitäten ein und sorgt für eine hohe Lebensqualität. Gleichzeitig ist die Verkehrsanbindung ideal: Die Autobahnen A3 und A66 sind schnell erreichbar, und der Bahnhof Bad Camberg bietet regelmäßige Zugverbindungen in die umliegenden Städte und in die Metropolregion Frankfurt/Rhein-Main.
Ob Berufspendler, Familien oder Naturliebhaber – die Lage am Hochdobener Weg 1a vereint die Vorzüge eines ruhigen Wohnumfelds mit einer optimalen Erreichbarkeit von urbanen Zentren und Freizeitmöglichkeiten.
Ausstattung:
Energieausweis:
Ausstattungsbeschreibung:
Allgemein:KfW-Effizienzhaus 40 nach GEG 2020
14 Wohneinheiten mit durchdachten Grundrissen
Tiefgarage mit E-Mobilitätsvorbereitung
Aufzug von der Tiefgarage bis ins Dachgeschoss
Kinderwagen- und Fahrradabstellraum
Ausstattung Wohnungen:
Fußbodenheizung
Dezentrale Lüftungsanlage mit Wärmerückgewinnung
Hochwertiger Vinylboden
Wohnungseingangstüren mit 3-fach Verriegelung
Bodengleich geflieste Duschen
Hochwertige Sanitärkeramik und Armaturen
Handtuchheizkörper
Gäste-WC mit Handwaschbecken (bei entsprechender Planung)
Waschmaschinenanschluss in Bad oder HWR
Luft-Wasser-Wärmepumpe
CAT7-Verkabelung & Multimediaanschluss
Stellplatz außen: 11.500 €
Stellplatz Tiefgarage: 22.500 €
Sonstige Angaben:
Um Ihre Anfrage möglichst schnell bearbeiten zu können, bitten wir um schriftliche Kontaktaufnahme mit Ihren vollständigen Kontaktdaten.Texte und Fotos:
Unsere Exposétexte erstellen wir selbst, nutzen aber an bestimmten Stellen KI-Anwendungen zur Bearbeitung.
Fotos werden gegebenenfalls mit Hilfe von KI Anwendungen bearbeitet.
- Provisionsfrei für den Käufer-
Diese Immobilie wird so angeboten, dass kein Maklervertrag mit dem Kaufinteressenten abgeschlossen wird. Die Vergütung bei der Vermittlung dieser Immobilie trägt ausschließlich der Verkäufer. Der Immobilienmakler ist der alleinige Interessenvertreter des Verkäufers und vereinbart mit dem Kaufinteressenten weder eine Vergütung, noch wird ein Maklervertrag abgeschlossen. Auch durch die Vereinbarung eines Besichtigungstermins oder die Übermittlung von Unterlagen sowie die Entgegennahme eines Kaufpreisangebots kommt kein Maklervertrag mit dem Kaufinteressenten zustande.
Alle Angaben beruhen auf Informationen/Unterlagen des Eigentümers - eine Gewähr kann von uns nicht übernommen werden. Irrtum vorbehalten.
Gerne bewerte ich auch Ihre Immobilie und erstelle Ihnen eine umfassende Wertermittlung mit Marktanalyse. Ich freue mich darauf, Sie unverbindlich in einem ersten Termin zu beraten, sprechen Sie mich an!
Sie wollen mehr erfahren?
Wenn Sie uns eine Nachricht über das Kontaktformular senden, melden wir uns schnellstmöglich bei Ihnen:







